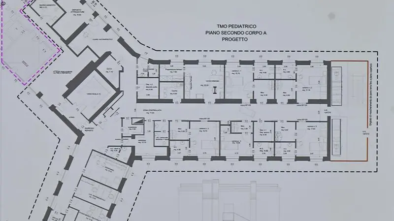
Trapianto di midollo al Civile, la pediatria ristrutturata entro il 2026
Oltre 700 trapianti di cellule staminali eseguiti dal 1990 in poi, 92% di sopravvivenza, incidenza di infezioni irrisoria. Grandi numeri descrivono un’attività pediatrica d’eccellenza – come quella del reparto di Trapianto di midollo osseo (Tmo) del Civile – riconosciuta a livello internazionale, che, però, ha un problema: si svolge in una struttura d’altri tempi che necessita di essere rinnovata al più presto, anzi subito. A metterlo in evidenza, accelerando il coronamento di un sogno che il reparto coltiva da vent’anni, è stata un’ispezione del Centro nazionale trapianti eseguita in ottobre, che ha riconosciuto il lavoro egregio che viene svolto entro queste mura e ne ha «fortemente caldeggiato» la ristrutturazione in tempi brevi, o meglio brevissimi.
Da qui è partita una gara di solidarietà. Consapevoli dell’urgenza del problema e dell’importanza di salvaguardare la continuità di un lavoro encomiabile – la cui eventuale sospensione avrebbe significato il venir meno di un servizio fondamentale per i bambini nonché la dispersione di competenze forti di una lunga e brillante storia – Ail Brescia e Luisa Marchesani Folonari (attraverso il fondo «Cavaliere del lavoro Francesco Folonari, Monica e Luca Folonari» aperto alla Fondazione Comunità Bresciana) hanno risposto subito all’appello offrendo ciascuno 500mila euro. La somma restante (500mila euro) è invece oggetto di una raccolta fondi avviata sempre da Ail Brescia. Raccolta alla quale contribuirà anche la «GdB Run» che l’Editoriale Bresciana organizza l’8 giugno nell’ambito delle celebrazioni per festeggiare gli 80 anni del Giornale di Brescia.
In tempo record
Emozionato, il direttore generale della Asst Spedali Civili Luigi Cajazzo ha annunciato l’operazione elogiando «la grande generosità e concretezza dei bresciani: Ail e Luisa Marchesani Folonari, insieme alla Fondazione Comunità Bresciana, hanno bussato alla nostra porta dicendo "Ci siamo"». «Volentieri sosteniamo questa ristrutturazione che inizia ora per concludersi entro metà 2026 – ha spiegato Giuseppe Navoni, presidente di Ail (Associazione contro leucemie, linfomi e mieloma) Brescia –: la vita dei bambini è preziosa e va difesa con tutte le forze».
È d’accordo Mario Mistretta, presidente della Fondazione il cui dono – reso possibile dal fondo istituto nel 2020 da Luisa Marchesani Folonari in memoria del marito Francesco e dei figli Monica e Luca – dimostra «la vicinanza della comunità all’istituzione. Con questa operazione la filantropia privata si fa filantropia istituzionale». Alla signora Marchesani Folonari – ricordiamo – questo reparto sta davvero a cuore: è già dedicato ai suoi figli prematuramente scomparsi, una perdita che nel dolore ha generato un gesto di profondo valore a beneficio di tante altre famiglie i cui bambini soffrono di patologie gravi. Il reparto, una volta rinnovato, continuerà ad essere intitolato a Monica e Luca Folonari. «Grazie» è stata la reazione di Lucia Dora Notarangelo, direttrice dell’Ospedale dei bambini: «Grazie – ha ribadito – per questo impegno il cui significato va oltre i muri e guarda alle famiglie che hanno un bisogno vero. Siamo dinnanzi all’ennesima dimostrazione che Brescia è sempre pronta ad aiutare».

Con lo sguardo e le parole di chi realizza un sogno ha espresso riconoscenza anche Fulvio Porta, direttore dell’Oncoematologia pediatrica dell’ospedale: «A soli quattro mesi dall’intervento della commissione del Centro nazionale trapianti i lavori possono iniziare. L’attività non verrà interrotta, ma spostata in un ambiente che andremo ad attrezzare. In un reparto dal clima sereno in cui si respira speranza eseguiamo 25-30 trapianti l’anno. I candidati al trapianto non sono diminuiti, ma aumentati: rispetto al passato non soffrono solo di leucemie o tumori, ma anche di anemia falciforme o malattie immunologiche. Qui miglioriamo la qualità della loro vita eseguendo trapianti da donatori compatibili, così come da donatori non compatibili familiari».
Riproduzione riservata © Giornale di Brescia
Iscriviti al canale WhatsApp del GdB e resta aggiornato
@News in 5 minuti
A sera il riassunto della giornata: i fatti principali, le novità per restare aggiornati.











